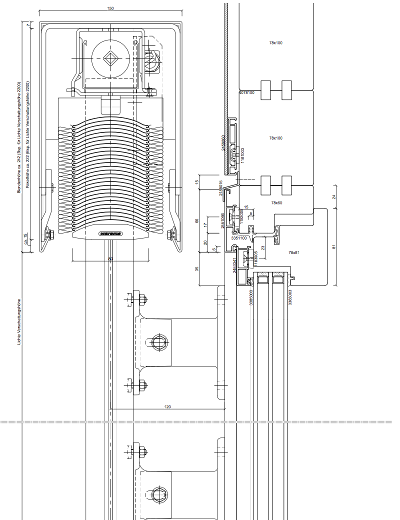
- Alle
- Lamellen - Lüftungsgitter
- Paneele - Opake Elemente
- Absturzsicherungen
- Verbreiterungen - Aufdoppelungen
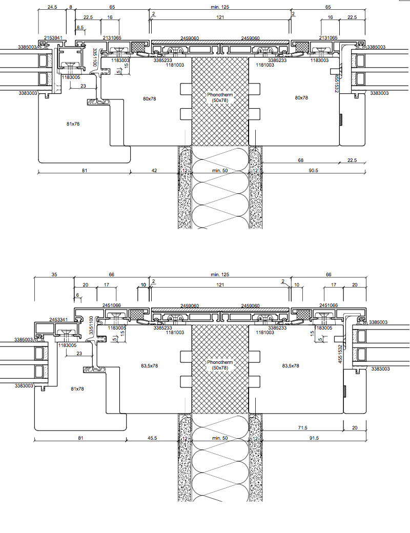
- Trennwandanschlüsse - Längsschall
- Motoren - Oberlichter
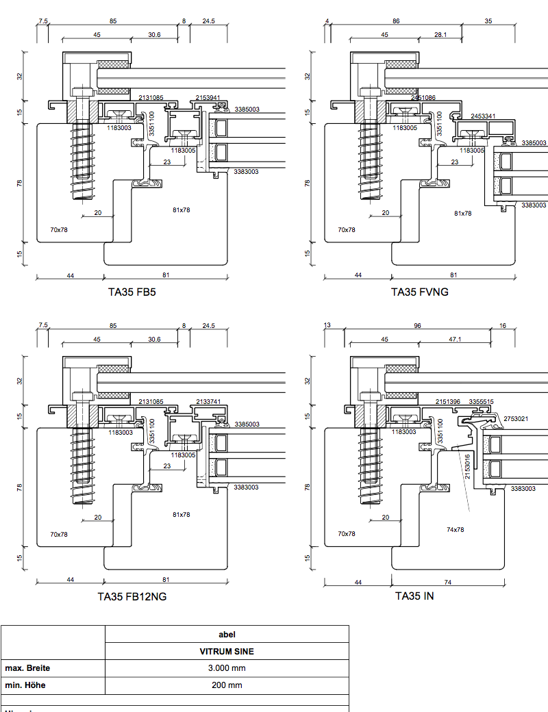
- Sonnenschutz - Führungen
- Türschwellen - Nullschwellen
Klicken Sie auf das Produkt für technische Infos, sowie Konstruktionsdaten als Downloads (pdf, dwg, dxf).
Sie können die gewünschte Information nicht finden?
Unser Team unterstützt Sie gerne!Benötigen Sie Beratung, Planung von Leitdetails, Kosten- und Budgetschätzung? Nehmen Sie Kontakt auf!