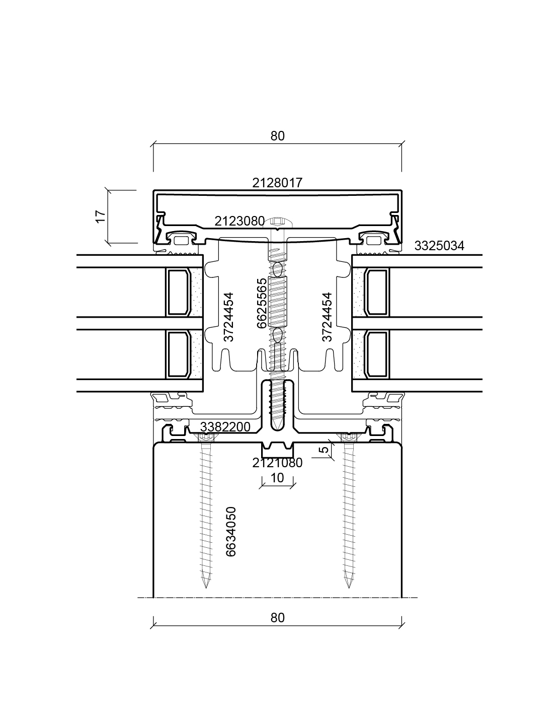
Holz-Aluminium Pfosten-Riegel
batimet TM80 SE
Wärmegedämmte Fassade für Passivhausanforderung in Pfosten-Riegelbauweise mit einer Tragkonstruktion aus Brettschichtholz bzw. Holzwerkstoffen mit Breiten von 80 mm, Profiltiefe nach statischer und konstruktiver Anforderung. Die Profilabmessungen müssen nach statischen Erfordernissen für eine maximale Durchbiegung entsprechend der Vorgaben in der Produktnorm für Vorhangfassaden DIN EN 13830 dimensioniert sein. Die besonderen Passivhaus-Anforderungen in Bezug auf Wärmedämmung und Dichtheit der Fassadenkonstruktion sind zwingend zu erfüllende Leistungsanforderungen.
- Glasstärke bis 64 mm
- Sonstige Füllungen bis 64 mm
- Glasgewichte bis 600 kg
- Polygonfassade bis 45 Grad
Die Eckverbindungen der Aluminium-Rahmen werden in geschweißter Form ohne sichtbare Fugen ausgeführt. Die Beschichtung wird nach den gültigen Qualitätsrichtlinien für die Beschichtung von Bauteilen aus Aluminium der GSB-International GSB AL 631, bzw. den QUALICOAT-Vorschriften ausgeführt.
Top Uw-Werte
Uw-Werte ≥ 0,62 W/m²K
Holzarten
Fichte, Kiefer, Tanne, Lärche, Eiche, Hemlock, Douglasie, Multiplex, Pollmeier Baubuche
Oberflächen
RAL, NCS, DB, Eloxal, Metallic, hochwetterfest, seewassertauglich
Eckverbindung
Geschweisste Eckverbindung, keine sichtbaren Fugen, dauerhafter Korrosionsschutz
DIN EN 12152 | Luftdurchlässigkeit: Klasse AE |
DIN EN 12154 | Schlagregendichtheit: Klasse RE1200 |
DIN EN 13116 | Widerstandsfähigkeit bei Windlast: Last 2,0 kN/m² |
DIN EN ISO 10077-2 | Uw ≥ 0,62 W/m²K |
DIN EN ISO 717-1 | Schallschutz: Rwp = 48 dB |
DIN EN 1627 | Einbruchhemmung: RC1N, RC2N, RC2, RC3 |
DIN EN 13049 | TRAV Absturzsicherung: Kategorie A, B, C, Klasse 5 |
DIN EN 12179 | Stoßfestigkeit Klasse I5/E5 |
DIBT-Zulassung | Allgemeine bauaufsichtliche Zulassung, DIBt. Z-14.4-669 |
DIBT-Zulassung | Systemverbindung Pfosten-Riegel Zulassung, ETA Danmark - ETA-18/0033 |