Holz-Aluminium Fenster batimet TA35 INRA

batimet TA35 INRA
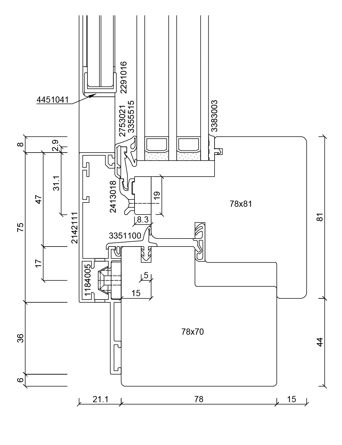
batimet TA35 INRA Schnitt

Holz-Aluminium Fenster
batimet TA35 INRA

Das Rahmenprofil verdeckt das Flügelprofil soweit, dass zwischen Festverglasungen und Öffnungselemente eine gleiche Rahmenansicht entsteht. Zwischen Glas und Flügelprofil besteht ein Versatz von 8 mm Tiefe. Die Konstruktion ist als Integralflügel oder Blockflügel definiert. Bei bestimmten statischen Anforderungen kann das Flügelprofil breiter ausgeführt werden. Die Entwässerung des Falzbereiches erfolgt durch verdeckte Stanzungen im unteren Profilquerstück des Rahmens. Optional kann eine sichtbare Entwässerung mit Abdeckkappe ausgeführt werden. Die Eckverbindungen der Aluminium-Rahmen werden in geschweißter Form ausgeführt. Integrierte Glasabsturzsicherung unsichtbar befestigt im Aluminium-Rahmen. Die Integration der Glasscheibe in den Alurahmen erfolgt durch eine Systemfräsung. Die Glasabsturzsicherung wird durch ein spezielles, vollverdecktes Halteprofilsystem befestigt. Die Ausführung erfolgt nach den Regelungen der DIN 18008-4 für absturzsichere Verglasungen. Die Glasscheibe ist in allen Breiten immer als VSG Scheibe aus 2 x ESG mit je 6 mm aufgebaut. Den oberen Abschluss bildet ein filigranes System-Kantenschutzprofil aus Aluminium. .

  • Flügelhöhen bis 3.000 mm
  • Flügelbreiten bis 1.600 mm
  • Flügelgewicht als Dreh-Kipp bis 200 kg
  • Flügelgewicht als Dreh bis 300 kg

Die Eckverbindungen der Aluminium-Rahmen werden in geschweißter Form ohne sichtbare Fugen ausgeführt. Die Beschichtung wird nach den gültigen Qualitätsrichtlinien für die Beschichtung von Bauteilen aus Aluminium der GSB-International GSB AL 631, bzw. den QUALICOAT-Vorschriften ausgeführt.

 
 

Top Uw-Werte

Uw-Werte ≥ 0,70 W/m²K

Holzarten

Fichte, Kiefer, Tanne, Lärche, Eiche, Hemlock, Douglasie

Oberflächen

RAL, NCS, DB, Eloxal, Metallic, hochwetterfest, seewassertauglich

Eckverbindung

Geschweisste Eckverbindung, keine sichtbaren Fugen, dauerhafter Korrosionsschutz

DIN EN 12207 Luftdurchlässigkeit: Klasse 4
DIN EN 12208 Schlagregendichtheit: Klasse E900
DIN EN 12210 Widerstandsfähigkeit bei Windlast: Klasse C4
DIN EN ISO 10077-2 Uw ≥ 0,70 W/m²K
DIN EN ISO 717-1 Schallschutz: Rwp = 46 dB
DIN EN 1627 Einbruchhemmung: RC1N, RC2N, RC2
DIN 18008-4 TRAV Absturzsicherung: Kategorie A, B, C
DIN 18008-4 Allgemeines bauaufsichtliches Prüfzeugnis - Rahmenintegrierte Absturzsicherung

Weitere batimet-Produkte, die Sie interessieren könnten: