Holz-Aluminium Fenster batimet TA35 SK

batimet TA35 SK
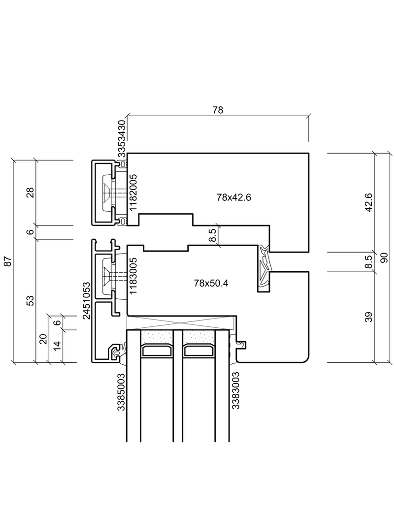
batimet TA35 SK Schnitt

Holz-Aluminium Fenster
batimet TA35 SK

Rahmenprofil und Flügelprofil bilden eine flächenbündige Ebene. Zwischen Glas und Flügelprofil besteht ein Versatz von 15 mm Tiefe. Die Ansichtsbreite des sichtbaren Flügelprofils beträgt 53 mm und verläuft gerade, senkrecht zur Glasebene. Bei bestimmten statischen Anforderungen kann das Flügelprofil breiter ausgeführt werden. Die Entwässerung des Falzbereiches erfolgt durch verdeckte Stanzungen im unteren Profilquerstück des Rahmens. Optional kann eine sichtbare Entwässerung mit Abdeckkappe ausgeführt werden.

  • Flügelhöhen bis 3.000 mm
  • Flügelbreiten bis 1.600 mm
  • Flügelgewicht als Senk-Klapp bis 200 kg
  • Flügelgewicht als Klapp bis 300 kg

Die Eckverbindungen der Aluminium-Rahmen werden in geschweißter Form ohne sichtbare Fugen ausgeführt. Die Beschichtung wird nach den gültigen Qualitätsrichtlinien für die Beschichtung von Bauteilen aus Aluminium der GSB-International GSB AL 631, bzw. den QUALICOAT-Vorschriften ausgeführt.

 
 

Top Uw-Werte

Uw-Werte ≥ 0,70 W/m²K

Holzarten

Fichte, Kiefer, Tanne, Lärche, Eiche, Hemlock, Douglasie

Oberflächen

RAL, NCS, DB, Eloxal, Metallic, hochwetterfest, seewassertauglich

Eckverbindung

Geschweisste Eckverbindung, keine sichtbaren Fugen, dauerhafter Korrosionsschutz

DIN EN 12207 Luftdurchlässigkeit: Klasse 4
DIN EN 12208 Schlagregendichtheit: Klasse E900
DIN EN 12210 Widerstandsfähigkeit bei Windlast: Klasse C4
DIN EN ISO 10077-2 Uw ≥ 0,70 W/m²K
DIN EN ISO 717-1 Schallschutz: Rwp = 44 dB
DIN EN 1627 Einbruchhemmung: RC1N, RC2N, RC2
DIN 18008-4 TRAV Absturzsicherung: Kategorie A, B, C

Weitere batimet-Produkte, die Sie interessieren könnten: